| CATEGORII DOCUMENTE |
| Alimentatie nutritie | Asistenta sociala | Cosmetica frumusete | Logopedie | Retete culinare | Sport |
Cuptoare de paine
Coacerea prod de panificatie de realiz in cuptoare speciale numite cuptoare de panificatie. In general un cuptor de panificatie are urm parti componente principale:
- camera de coacere - cc;
- vatra - v (adica suprafata pe care are loc coacerea);
- sistemul de inclazire;
- focarul;
- system de aburire;
- carcasa;
- aparatura de masura si control.
Exista o mare varietate de cuptoare de panificatie si s-au incercat mai multe variante de clasificare, cele mai intalnite fiind:
1. Dupa modul de functionare
a.cuptoare cu functionare discontinua - cuptorul de caramida;
- cuptorul Damph;
- cuptorul cicloterm cu tevi ...;
b.cuptorul cu functionare continua - cuptorul tunnel cu banda;
2. Dupa modul de constructie al vetrei
- cu vatra fixa;
- cu vatra mobile.
3. Dupa modul de incalzire
- cuptoare cu incalzire directa in care camera de coacere se confunda cu focarul - cuptorul de caramida;
- cuptoare cu incalzire indirecta in care camera de coacere este diferita de focar deoarece in focar se arde combustibil iar in cc se coace aluatul.
Mai putem face o clasificare a cupt in fctie de combustibilul folosit:
- aburul - cupt Damph;
- gaze fierbinti;
- amestec de gaze fierbinti si gaze uscate;
- cuptoare cu lemne;
- cuptoare electrice.
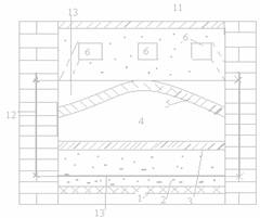
Cuptorul de caramida

Cuptorul de
caramida este un cuptor cu functionare discontinua si singurul cu incalzire
directa. Cuptorul are o carcasa de zidari care are un rol de rezistenta si de
accumulator de caldura. In interiorul cuptorului se gaseste un strat isolator,
format din sticla pisata asezata pe umplutura de pamant. Deasupra ac strat
termoizolator se afla startul de nivelare 2 cu ajut caruia se realic inclinarea
vetrei 3. vatra este inclinata spre deshiderea de alimentare prevazuta cu
Bolta cuptorului 5 este formata dintr-un arc de zidarie refractala deasupra ei gasindu-se un alt strat de umplutura. Gazele de ardere rezltate prin arderea combustibilului st captate de canalele de fum 6 si dirijate spre canalul collector 7.
Canalele
de fum pornesc dun fundul camerei de coacere si trec pe deasupra boltii prin
stratul de umplutua
Canalele
de fum
Arderea combustibilului (motorina sau gaze speciale) este facuta cu ajut unui injector in cc.
Etapa
de incalzire a cuptorului dureaza 35-45 min, pozitia injectorului
modificandu-se de cateva ori pt ca flacara sa incalzeasca uniform vatra si
bolta cuptorului. La finalul ac etape se intrerupe arderea, se pun tufecurile
si se optureaza camerele de fum pt a nu se pierde Q, se sterge vatra cu un
pamatuf umed si se umezeste prin aruncarea cam a 1 litru de apa pe bolta.
Imediat dupa ac se inchide
Incarcarea cuptorului se face alcatuindu-se randuri longitudibale incepand din fundul cuptorului. Dupa coacere painea se scoate din cuptor apoi ciclul se repeta.
Cuptoarele
de acest tip prez avantajul ca realizeaza un astfel de regim de coacere incat
paine are gust placut si aroma superioara si se pot coace prod cu masa mare (2-
Dezavantaje - productivitate destul de redusa si volumul mare de munca necesar deservirii.
Cuptorul tunel cu vatra
1-carcasa cuptorului; 2-sistem de antrenare
al benzii cuptorului; 3-roti de intindere; 4-banda transportoare cu rol de
vatra; 5-focare. Cuptorul tunel cu bada este un cuptor cu functionare continua
la care incarcarea si descarcarea prod se fac fara intrerupere a.i. se asigura
continuitatea trecerii prin cuptor. Gazelle de ardere obtinute in focare st
dirijate prin canale de distributie situate de o parte si de alta a benzii.
Reglarea distributiei gazelor stanga-dreapta se face din exterior cu ajutorul
unor clapete. Acest cuptor are 3 zone de functionare corespunzatoare celor 3
etape imp in coacerea prod.
In prima zona I exista si o instalatie de aburire (6) compusa dintr-un distribuitor de abur si o teava de abur montata transversal pe directia benzii in zona de alimentare cu aluat. Instalatia de aburire este racordata la o sursa de abur de joasa presiune 104 %.
In
zona a II-a de coacere se asigura o temp in jur de 220-
In
zona a III-a se asigura finalizarea coacerii prin mentinerea unei temp de pana
la
Unele cuptoare de acest tip st prevazute cu instalatie pt recuperarea caldurii din gazelle arse economisindu-se astfel o parte din combustibilul utilizat pt coacere. Productivitatea unui astfel de cuptor este de 10-20t/24h.
Avantajele principale ale ac cuptor:
- productivitate mare;
- mecanizare completa;
- automatizare completa;
- imbunatatirea igienei produselor.
Depozitarea si livrarea prod finite
Bucatile
de paine coapta st scoase din cuptor, asezate pe rastele si transportate
intr-un depozit cu o temp de
Depozitarea urmareste 2 scopuri:
1. Racirea produselor in conditii optime;
2. Pastrarea produselor in conditii optime.
Dpdv
al calitatii prod pe o anumita durata de timp pt maturizare deoarece painea
este optima pt consum in stare rece. Racirea painii incepe din primele momente
de la scoaterea din cuptor si variaza in fctie de masa painii si de param
aerului din depozit. In depozit tb sa fie 18-
Pierderile in masa painii nu st uniforme pe toata durata racirii, ele fiind mai mari in prima parte (~50%) cand painea are temp mai mare decat a meiului ambuant. Pierderile se diminueaza in momentul in care painea ajunge la temp mediului ambiant.


|
Politica de confidentialitate | Termeni si conditii de utilizare |
Vizualizari: 5034
Importanta: ![]()
Termeni si conditii de utilizare | Contact
© SCRIGROUP 2025 . All rights reserved