| CATEGORII DOCUMENTE |
| Demografie | Ecologie mediu | Geologie | Hidrologie | Meteorologie |
Determinarea parametrilor principali ai deznisipatoarelor
Determinarea debitelor caracteristice de apa si nisip ale deznisipatoarelor
Debitul de calcul (dimensionare)
de apa uzata prelucrat de deznisipatoare - se stabileste in functie de procedeul de canalizare utilizat pentru aducerea apei uzate in statia de epurare, astfel pentru procedeul de canalizare unitar sau mixt:
in care :
debitul orar maxim al localitatii deservite de statia de epurare ;
coeficient care tine seama de neuniformitatea debitului apelor de canalizare introduse in statie, cu valori intre 2 - 4 (vezi STAS 1846-90),
in conditii normale avand valoarea
.
Debitul de verificare
de apa prelucrat de deznisipatoare - indiferent de procedeul de canalizare utilizat pentru aducerea apei uzate in statia de epurare, se stabileste cu relatia:
unde:
debitul orar minim de apa uzata al localitatii deservite de statia de epurare.
Mentiune: Deznisipatoarele sunt obiecte tehnologice care sunt prevazute in componenta statiilor de epurare numai in cazul in care valorile debitului orar maxim de apa uzata Qu orar max [m3/h] al localitatii deservite de acestea sunt mai mari sau egale cu 36 m3/h (10 l/s) in cazul in care pentru aducerea apei uzate la statia de epurare se utilizeaza canalizari in procedeul unitar sau mixt, respectiv mai mari sau egale cu 126 m3/h (35 l/s) in cazul in care pentru aducerea apei uzate la statia de epurare se utilizeaza canalizari in procedeul separativ.
Cantitatea specifica de nisip
care se colecteaza si evacueaza - se apreciaza in functie de procedeul de canalizare folosit pentru aducerea apei uzate la statia de epurare, astfel :
Cantitatea zilnica de nisip evacuata
se determina cu relatia :
in care :
debitul zilnic maxim de apa uzata al localitatii.
Masa zilnica de nisip evacuata
- se determina cu relatia:
unde:
densitatea nisipului evacuat din deznisipator,
Determinarea parametrilor principali ai deznisipatorului longitudinal cu sectiune parabolica si colectare mecanica/hidraulica a nisipului
Constructia si functionarea deznisipatorului longitudinal cu sectiune parabolica
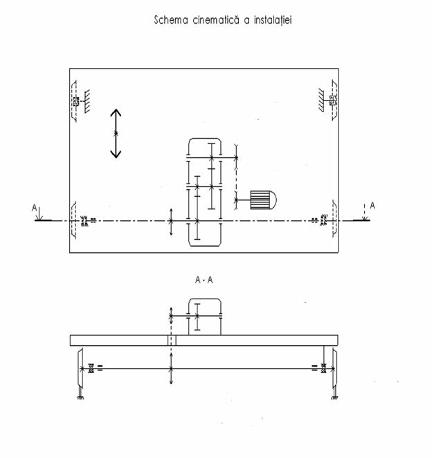
Deznisipatorul longitudinal cu sectiune parabolica si colectare mecanica/hidraulica a nisipului este compus din urmatoarele componente principale (vezi figura 1): compartimentele de deznisipare (pozitia I), canalele Parshall (pozitia II), podul rulant de colectare a nisipului (pozitia III), sistemul de evacuare si spalare a nisipului (pozitia IV) si jgheaburile drenante longitudinale pentru deshidratarea nisipului (pozitia V).
Compartimentele de deznisipare sunt construite din beton avand peretii 1 de forma parabolica (sau o forma cat mai apropiata de aceasta) in zona de curgere a apei (vezi figura 1, sectiunea transversala A - A) si verticali deasupra zonei de curgere a apei. De-a lungul partii inferioare a compartimentelor sunt prevazute rigolele centrale 2 de colectare a nisipului. In cazul in care deznisipatorul are sistem de colectare mecanica a nisipului, in partea dinspre amonte a fiecarui compartiment sunt prevazute basele In cazul in care deznisipatorul are sistem de colectare hidraulica a nisipului, basele nu sunt necesare.
In avalul fiecarui compartiment de deznisipare cu sectiune parabolica este recomandabil sa fie prevazut cate un canal Parshall care are urmatoarele roluri foarte importante: sa mentina constanta viteza de curgere a curentului de apa uzata care strabate deznisipatorul in cazul in care debitul curentului de apa uzata variaza (variatia debitului este limitata superior de o valoare maxima, si anume valoarea debitului Qc de calcul, situatie in care nivelul apei in deznisipator se gaseste la limita superioara a zonei parabolice a peretilor); sa permita o determinare usoara si precisa a valorii debitului de apa uzata care strabate deznisipatorul.
Canalele Parshall care lucreaza in agregat cu compartimentele de deznisipare, sunt canale cu sectiune dreptunghiulara prevazute cu o ingustare (fanta) dreptunghiulara avand radierul orizontal sau coborat (cu treapta). Atata timp cat curgerea apei prin canalul Parshall se face cu salt hidraulic neinecat, debitul de intrare in canal (acelasi cu debitul din deznisipator) poate fi determinat prin masurarea unui singur parametru, si anume nivelul apei din amontele ingustarii, scop in care in aceasta zona este prevazut caminul 4 in care se fac masuratorile.
Podul rulant de colectare a nisipului este compus din platforma 5, sistemul de rulare 6, sistemul de antrenare 7 care asigura deplasarea podului rulant si dupa caz, cu lopetile racloare 8 dotate cu mecanismele de pozitionare 9, la sistemele de colectare mecanica a nisipului sau cu agregate de pompare sau cu instalatii cu sifoane, la sistemele de colectare hidraulica a nisipului (in acest din urma caz, amestecul de nisip si apa este preluat din rigola de colectare a deznisipatorului prin intermediul unor conducte de absorbtie prevazute cu sorburi si apoi evacuat in lungul jgheabului drenant longitudinal adiacent deznisipatorului prin conductele de evacuare fixate pe podul rulant). Un pod rulant poate deservi simultan unul sau mai multe compartimente de deznisipare. Daca podul rulant deserveste concomitent mai multe compartimente de deznisipare, atunci acesta este prevazut cu organe de colectare/colectare - evacuare a nisipului pentru fiecare compartiment in parte, pozitionate corespunzator si care pot fi comandate independent.
Sistemul de evacuare si spalare a nisipului, care echipeaza deznisipatoarele cu colectare mecanica a nisipului, preiau hidraulic nisipul colectat in basele din amontele compartimentelor de deznisipare prin intermediul unor agregate de pompare 10 si il introduc in instalatia de spalare 11, unde acesta este curatat de particulele si impuritatile fine de natura organica, dupa care este evacuat prin intermediul unui sistem de conducte 12 in jgheabul drenant longitudinal amplasat paralel cu compartimentele de deznisipare, in vederea deshidratarii.
Fig. 1. Deznisipator longitudinal cu sectiune parabolica, cu colectare mecanica si evacuare hidraulica a nisipului

2.2 Determinarea parametrilor dimensionali si functionali ai compartimentelor deznisipatorului longitudinal cu sectiune parabolica
Viteza
orizontala a apei in deznisipator (medie pe sectiune) - se impune de catre proiectant din intervalul de valori 0.1 - 0.3 m/s .
Am ales ca valoare
.
Timpul
mediu de trecere a apei prin deznisipator - se impune de catre proiectant din intervalul de valori 30 -65 s.
Am ales valoarea
.
Lungimea
a deznisipatorului - se determina cu relatia :
Incarcarea superficiala
a deznisipatorului - se exprima cu relatia :
Aceasta trebuie sa indeplineasca conditia :
in care :
viteza de sedimentare in curent,
determinata experimental pentru particule de diferite dimensiuni de nisip
cu densitatea de 2650 kg/m3 si la o viteza de curgere
orizontala a apei de 0,3 m/s, are valorile din tabelul 1 (in tabel sunt
indicate in plus si valorile marimii hidraulice uo [m/h]
corespunzatoare diferitelor dimensiuni ale particulelor de nisip).
Tabelul 1
|
d [mm] | ||||
|
uo [m/h] | ||||
|
u [m/h] |
Latimea B [m] a deznisipatorului se poate determina pe baza relatiilor de mai sus, rezultand:
Se
recomanda ca latimea B a deznisipatorului sa aiba
valori intre 0,6-4m. Daca prin
calcul, cu relatia
valoarea latimii B este mai mare de
4 m atunci deznisipatorul va avea cel mai mic numar intreg idez de
compartimente active cu o latime Bcomp [m] mai mica
de 4 m. Latimea Bcomp se determina tot cu relatia
, inlocuind
debitul Qc de calcul al deznisipatorului cu debitul de calcul Qc
comp = Qc / idez pentru un compartiment activ al
deznisipatorului. Daca, prin calcul rezulta o valoare a lui B mai
mica de 0,6 m, atunci i se va da lui B valoarea de 0,6 m.
Mentiuni : La deznisipatoarele din statiile de epurare trebuie sa fie obligatoriu prevazute atat compartimente active cat si de rezerva. Deci, numarul total minim de compartimente ale unui deznisipator este de 2 compartimente (unul activ si unul de rezerva).
Se recomanda ca la intrarea si la iesirea compartimentelor de deznisipare sa se prevada stavile sau batardouri in scopul izolarii fiecarui compartiment in caz de avarii, revizii sau reparatii.

Daca
deznisipatorul are mai multe compartimente de deznisipare, amplasarea acestora
se face tinandu-se seama de numarul total de compartimente si pe
baza dimensiunilor caracteristice recomandate ale podurilor rulante (vezi
tabelele 2 si 3), analizandu-se daca podurile rulante vor deservi
concomitent unul sau mai multe compartimente.
Suprafata Ao [m2] a luciului de apa din deznisipator corespunzatoare debitului de calcul se exprima cu relatia:
Debitul de calcul
pentru un compartiment activ al deznisipatorului :
unde :
numarul de compartimente active, valoarea sa este 1.
Latimea
a unui compartiment activ :
Inaltimea hc [m] a apei in compartimentele de deznisipare, la debitul de calcul Qc comp se determina cu relatia:
Se recomanda ca inaltimea hc a apei in compartimentele de deznisipare, la debitul de calcul, sa ia valori intre 0,4 - 1,5 m. Daca valoarea lui hc nu se incadreaza in gama de valori recomandata, atunci se vor reconsidera valorile impuse pentru vo si tm dez si se vor relua calculele pana vor fi respectate toate conditiile impuse.
Inaltimea H [m] a compartimentelor de deznisipare se impune sa fie cu 0,5-0,7 m mai mare ca inaltimea hc a apei in compartimentele de deznisipare, la debitul de calcul.
Ecuatia parabolei dupa care sunt profilati peretii compartimentelor deznisipatorului in zona de curgere a apei uzate este de forma (vezi figura 3):
in care: b [m] - distanta curenta dintre peretii parabolici ai deznisipatorului la oglinda apei;
h [m] - adancimea curenta a apei din deznisipator;
p - parametrul parabolei.
Parametrul parabolei se determina punand conditiile la limita: b=Bcomp si h=hc, in acest caz rezultand pentru parametrul p valoarea B2comp/8hc.
Deci, relatia explicita a ecuatiei dupa care sunt profilati peretii compartimentelor deznisipatorului in zona de curgere a apei uzate este:
Calculul ecuatiei pentru determinarea profilului:
|
h |
b |
b/2 |
|
| ||
Fig. 3 Profilul peretilor compartimentului de curgere al deznisipatorului
Dimensiunile latimii brig [m] si inaltimii hrig [m] ale rigolei longitudinale de colectare a nisipului se vor impune de catre proiectant si vor avea valori de minimum 0,4 m, respectiv minimum 0,25 m.
Am ales
si
Inaltimea stratului de nisip depus
, se calculeaza cu relatia:
unde:
cantitatea zilnica de nisip evacuata [m3/zi];
numarul de evacuari a nisipului depus (
latimea rigolei [m];
lungimea
deznisipatorului [m].
2.3 Determinarea parametrilor dimensionali si functionali ai canalului Parshall, amplasat in avalul deznisipatorului
Canalele Parshall sunt dispozitive de masurare a debitului de apa uzata care pot fi plasate in orice punct al statiei de epurare. Totusi, se recomanda ca acestea sa fie plasate in avalul deznisipatoarelor cu sectiune parabolica in scopul mentinerii constante a vitezei de curgere a apei in acestea.
Canalele Parshall se obtin prin ingustarea sectiunii in plan transversal de la valoarea initiala BP la bP < BP si apoi largirea printr-un divergent la valoarea initiala BP (vezi figura 4), suprafetele verticale de racordare fiind plane. Ingustarea sectiunii canalului produce o accelerare a curentului de apa rezultand o coborare a nivelului acestuia.

Fig. 4.
Principiul de functionare a unui canal Parshall
Forma sectiunii ingustarii (denumita si fanta) poate fi (vezi figura 5): dreptunghiulara, trapezoidala sau in U (dreptunghiulara cu fund rotunjit). Dintre acestea, canalele cu fanta rectangulara sau sub forma de U sunt mai sensibile la variatiile de debit, iar cele cu fanta trapezoidala sunt recomandate in cazul unei game foarte largi de debite care trebuie masurata. In practica, pentru ape uzate, canalele cu fanta dreptunghiulara, care sunt totodata si cele mai simplu de executat, sunt cel mai des utilizate.
Fig. 5. Forme ale sectiunii transversale a canalelor Parshall
Determinarea parametrilor dimensionali si functionali ai canalelor Parshall cu ingustare cu sectiune dreptunghiulara utilizate in statiile de epurare a apelor uzate s-a facut prin studii experimentale, prin folosirea unor modele la scara redusa si, apoi, prin aplicarea principiilor de similitudine.
S-au studiat doua variante de canale Parshall, si anume:
- canal Parshall cu radierul coborat (cu treapta);
- canal Parshall cu radierul drept.
Parametrii dimensionali ai unui canal real de tip Parshall cu radierul drept (vezi figura 6) se determina cu urmatoarele relatii:
Pentru ca un
canal Parshall care lucreaza in agregat cu un compartiment de deznisipare
longitudinal cu sectiune parabolica, sa asigure mentinerea
constanta a vitezei orizontale de curgere a apei in deznisipator, se
impune egalitatea dintre adancimea
a curentului de
apa din canalul Parshall (in amonte de ingustarea sectiunii) si
adancimea hc a curentului de apa in compartimentul de
deznisipare (
), aceasta
conducand, pe baza conditiei de egalitate a sectiunilor parcurse de
curentul de apa, atat in compartimentul de deznisipare cat si in
canalul amonte a canalului Parshall, la o valoare a latimii Bp
a canalului Parshall:
in care: B [m] - latimea compartimentului de deznisipare longitudinal cu sectiune parabolica cu care canalul Parshall lucreaza in agregat.
![]()

Fig. 6. Canal Parshall cu radier orizontal
La dimensionarea canalelor Parshall cu strangulare dreptunghiulara se mai tine seama si de urmatoarele recomandari:
- adancimea apei in canalul Parshall in amonte de strangulare trebuie sa fie astfel incat ham > 0,05m sau ham > 0,05CD, dar in orice caz mai mica de 2 m;
- latimea bP va fi astfel incat:
si
unde :
coeficientul
de strangulare
- canalul Parshall trebuie amplasat pe un aliniament care sa asigure distantele (vezi figura 8):
- in amonte (de la deznisipator pana la orificiul de masurare):
- in aval:

Fig. 7 Aliniamentul canalelor Parshall
aliniamentul L3 poate fi eliminat daca exista probabilitatea realizarii imediat dupa canalul Parshall a unei caderi sau trepte (vezi figura 8). In acest caz, canalul Parshall va functiona neinecat atata vreme cat nivelul apei din aval de treapta hav c va fi sub nivelul critic hcrc aferent treptei;
Fig. 8. Canal Parshall cu treapta aval
- pierderile de sarcina sunt cu atat mai mici cu cat coeficientul y de strangulare are valori mai mari;
Amplasarea canalelor Parshall in fluxul tehnologic al statiei de epurare va urmarii ca nici un obiect sau obstacol aval sa nu produca remuu care ar putea conduce la inecarea acestora si, de asemenea, ca nivelurile din amonte generate de canalele Parshall sa nu influenteze defavorabil curgerea in obiectele din amonte.
3 Determinarea parametrilor dimensionali, cinematici dinamici si energetici ai podului rulant de colectare a nisipului
Tipuri de poduri rulante folosite in statiile de epurare a apelor uzate
Podurile rulante care echipeaza deznisipatoarele si decantoarele longitudinale din statiile de epurare a apelor uzate sunt constructii monogrinda sau cu doua grinzi, cu deschideri pana la cca. 10 m, propulsate cu sisteme de actionare proprii, pe care sunt montate organele de colectare/colectare - evacuare a nisipului/namolului.
In general un pod rulant este compus din urmatoarele parti principale (vezi figura 9): cadrul podului rulant (pozitia I), trenul de rulare (pozitia II), sistemul de propulsie a podului (pozitia III), sistemul de colectare/ colectare - evacuare a nisipului/namolului (pozitia IV), instalatia electrica a podului rulant (pozitia V).

Fig. 9. Schema de principiu a unui pod rulant pentru bazine longitudinale (aici dotat cu lame de raclare a nisipului din deznisipatoare)
Cadrul podului rulant este format din: grinzile de rezistenta 1 confectionate din profiluri de otel sau din chesoane din tabla de otel, platforma 2 si balustradele de protectie
Trenul de rulare al podurilor este de regula format din doua punti cu cate doua roti 4 (in unele cazuri exceptionale, la poduri de mari dimensiuni pot utilizate mai multe punti), dintre care una motoare (respectiv cea anterioara in directia de miscare a podului la cursa activa); rotile podurilor rulante ale deznisipatoarelor sau decantoarelor longitudinale pot fi: metalice prevazute cu buze de ghidare unilaterale sau bilaterale (vezi figura 10), caz in care caile de rulare sunt metalice (sine), metalice cu invelis din poliuretan sau cauciuc, caz in care caile de rulare sunt chiar coamele peretilor din beton ale bazinelor (in acest caz pentru ghidarea deplasarii podurilor rulante astfel incat sa fie impiedicata inaintarea oblica care se poate dovedi foarte periculoasa, acestea sunt prevazute cu roti de ghidare, cu axa verticala, care ruleaza pe peretii laterali ai bazinelor.
Sistemul de propulsie al podului rulant este format din motorul electric 5 si transmisia 6, care este de regula mecanica putand avea in componenta transmisii cu curea, reductoare sau transmisii cu lant si care actioneaza rotile motoare; sistemul de propulsie trebuie sa asigure deplasarea podului rulant in ambele sensuri.
Sistemul de colectare/colectare - evacuare a nisipului/namolului realizeaza raclarea nisipului/namolului din rigola centrala longitudinala sau de pe radierul deznisipatoarelor/decantoarelor antrenandu-l catre basa din amontele acestora in cazul sistemelor mecanice de colectare, sau absorbtia nisipului/namolului din rigola centrala longitudinala sau de pe radierul deznisipatoarelor/decantoarelor in cazul sistemelor hidraulice de colectare-evacuare.
Fig. 10. Roti metalice cu buze de ghidare de la podurile rulante
Sistemul mecanic de colectare a nisipului/namolului este format (vezi figura 9) din: lamele de raclare 7, sistemul 8 de sustinere a lamelor de raclare si mecanismul 9 de pozitionare a lamelor de raclare.
In cazul utilizarii sistemelor mecanice de colectare a nisipului/namolului deplasarea podurilor rulante prezinta particularitati in functie de sensul de deplasare si anume: la deplasarea dinspre avalul catre amontele bazinelor longitudinale se realizeaza cursa activa pe parcursul careia podul rulant are organele sistemului de colectare a nisipului/namolului in pozitie de lucru si are loc procesul de raclare, in timp ce la deplasarea dinspre amontele catre avalul bazinelor longitudinale se realizeaza cursa pasiva pe parcursul careia podul rulant are organele sistemului de colectare a nisipului/namolului in pozitie retrasa sau rabatuta podul rulant indreptandu-se spre punctul de pornire intr-o noua cursa activa.
Sistemul hidraulic de colectare - evacuare a nisipului/namolului este format (vezi figura 11) din conductele de suctiune 1 prevazute cu sorburile 2 astfel profilate incat la deplasarea podului rulant sa baleieze complet zonele de depunere a nisipului/namolului, rezervorul tampon 3 si instalatia de evacuare a nisipului/namolului (prin pompare sau prin sifonare) compusa din pompa de lucru/amorsare 4 si conductele de transport 5 care preia nisipul/namolului din rezervorul tampon si il evacueaza in jgheabul drenant longitudinal 6.
In cazul utilizarii sistemelor hidraulice de colectare - evacuare a nisipului/namolului nu apar particularitati in functie de sensul de deplasare a podurilor rulante, sistemul hidraulic de colectare-evacuare a nisipului/namolului fiind in functionare permanenta indiferent de sensul de deplasare.
Instalatia electrica a podului rulant (vezi figura 9, pozitia V) este compusa din racordul electric aerian 10, tabloul electric si de automatizare 11 precum si sistemul de cabluri. Prin intermediul tabloului electric si de automatizare poate fi stabilit programul de deplasare al podului si comanda sistemelor de pozitionare a organelor de colectare sau, dupa caz, actionarea electropompelor de la sistemele de colectare - evacuare hidraulica a nisipului/namolului.

Fig. 11. Schema de principiu a unui sistem hidraulic de colectare - evacuare a nisipului
Parametrii dimensionali, cinematici, dinamici si energetici ai podului rulant care deserveste deznisipatorul
Podurile rulante folosite in statiile de epurare din tara noastra sunt realizate in serie tipodimensionala avand parametrii dimensionali in corelatie cu profilele bazinelor decantoarelor longitudinale, care au dimensiuni standardizate (STAS 4162/1-89, STAS 4162/2-89).
In cazul deznisipatoarelor cu colectare mecanica a nisipului, podurile racloare pot fi alese de preferinta din seria tipodimensionala prezentata in tabelul 2, in functie de numarul, dispunerea si dimensiunile bazinelor deservite concomitent, avand lame racloare cu dimensiuni in corelatie cu dimensiunile rigolelor longitudinale de colectare a nisipului sau a radierelor bazinelor.
Tabelul 2
|
Latime decantor b1 [m] |
Distanta dintre coamele peretilor laterali B [m] |
Lungime maxima decantor L [m] |
Ecartamentul trenului podului rulant E [m] |
Lungime lama de raclare l [m] |
Distanta dintre barele de sustinere a lamei de raclare c [m] |
Distante de montare a tampoanelor din aval |
Inaltime bazin H [m] |
Nivelul apei la debitul de calcul Ha [m] |
|
|
a1 [m] |
a2 [m] |
||||||||
|
| |||||||||
In continuare vor fi prezentati anumiti parametri dimensionali caracteristici ai podurilor rulante.
Lungimea
[mm] a platformei podului rulant se
poate stabili cu relatia:
Latimea
[mm]
a platformei podului rulant se impune astfel incat sa fie asigurat loc
suficient pentru accesul la mecanismul de propulsie, la mecanismul de
comanda si respectiv la instalatiile de pompare sau sifonare. Se
poate aprecia ca latimea podului rulant poate lua valori intre
900 - 1500 mm.
Am ales valoarea
Diametrul
[mm]
al rotilor podului rulant se impune tinand seama de
existenta unor conditii de amplasare a platformei podului rulant
fata de calea de rulare (vezi cota H3), in acest caz
diametrul rotilor podului rulant putand lua valori intre 200 - 300 mm.
Daca nu sunt impuse conditii restrictive de amplasare a platformei,
diametrul rotilor podului poate ajunge pana la valori de 560 mm.
Am ales valoarea
Ampatamentul
[mm]
intre axele rotilor motoare si rotilor conduse ale podului
rulant se poate stabili din conditia ca acestea sa se
gaseasca in interiorul ariei platformei podului rulant pe baza
relatiei:
Viteza
[m/s] de deplasare a podului rulant este
stabilita tinandu-se seama de:
- la podurile rulante prevazute cu organe de colectare mecanica a nisipului/namolului trebuie ca in timpul procesului de colectare, materialul sedimentat sa fie antrenat fara sa fie pus in suspensie; vitezele recomandate de deplasare ale organelor de raclare, deci implicit ale podului rulant, sunt intre 0,01-0,05 m/s; respectiv de 0,01 - 0,02 m/s la deznisipatoare, valoarea vitezei trebuind astfel aleasa incat un ciclu de functionare tur - retur sa nu depaseasca 45 minute.
Valoarea aleasa
Greutatea
[N] a
podului rulant echipat cu sistemul de colectare sau colectare - evacuare a
nisipului/namolului se poate estima in faza de proiectare prin aprecierea
unei anumite configuratii constructive si apoi prin calcularea
masei/greutatii acesteia pe baza volumului elementelor sale
componente. In tabelul 3 sunt indicate greutatile unor serii
tipodimensionale de poduri rulante pentru statii de epurare a apelor uzate
fabricate in tara noastra.
Tabelul 3
|
Latimea bazinului aferent b1 [m] |
Masa podului rulant mpr [kg] |
Greutatea podului rulant Gpr [N] |
Valoarea aleasa este
Forta Fpr [N] de rezistenta la inaintarea podului rulant se determina cu relatia:
in care:
- forta de rezistenta la
raclarea materialului sedimentat;
- forta de
rezistenta la rulare a podului;
- forta de rezistenta
determinata de mersul oblic;
- forta de
rezistenta determinata de actiunea vantului;
- forta de rezistenta la
deplasarea prin curentul de apa uzata a organelor de
colectare/colectare - evacuare;
- forta de rezistenta
datorata inertiei la demaraj.
Forta
de rezistenta la raclarea
materialului sedimentat se calculeaza cu relatia:
in care:
- forta de rezistenta pe
directie orizontala care apare la raclarea materialului sedimentat;
- forta de rezistenta data
de frecarea organelor sistemului de colectare a materialului sedimentat cu
radierul bazinului.
Forta
de rezistenta pe directie
orizontala care apare la raclarea materialului sedimentat se
determina cu relatia:
in care:
- latimea unei lamei de colectare a
materialului sedimentat (masurata pe verticala);
- numarul lamelor de colectare a
materialului sedimentat care lucreaza concomitent, montate pe acelasi
pod rulant;
- lungimea unei
lamei de colectare a materialului sedimentat;
- greutatea specifica a materialului
sedimentat avand valorile de 25997 N/m3 pentru nisip; 9850 - 9950
N/m3 pentru namol primar cu umiditatea de 95 - 97% si cca.
9820 N/m3 pentru namolul activ in exces (namol secundar)
cu umiditatea de 98-99% .
Se mentioneaza ca volumul Vc [m3] transportat de organele de colectare mecanica se poate determina cu relatia:
in care:
- panta
naturala a materialului sedimentat sub apa care are valorile: 1/15
pentru nisip, 1/20 pentru namol primar si 1/24 pentru namol
secundar.
Forta Foc [N] de rezistenta data de frecarea organelor sistemului de colectare a materialului sedimentat cu radierul bazinului poate fi determinata cu relatia:
in care:
coeficientul de frecare dintre organul de
colectare si radier, care se considera ca are valoarea 0,3 ;
apasarea pe radier a lamelor organului de
colectare a materialului sedimentat (figura
12).
c) Organe de colectare verticale, fixe: la acest tip
de organe de colectare, lamele de raclare nu se sprijina pe radier, deci
Fig. 12. Diferite tipuri de organe de colectare a materialului sedimentat
Forta Fr [N] de rezistenta la rulare a podului rulant se poate determina cu relatia:
in care:
coeficientul de rezistenta la rulare
a podului rulant;
In cazul nostru podul rulant are
trenul de rulare format din roti metalice care ruleaza pe sine
metalice, coeficientul
se
calculeaza cu relatia:
in care:
coeficientul de frecare de rostogolire pentru
roti din otel care ruleaza pe sina din otel
si care are valorile: 0,03 / 0,04 pentru roti cu diametrul Dr
= 200 - 320 mm care ruleaza pe sina plata, respectiv bombata; Am ales
coeficientul de frecare de alunecare in
lagarele rotilor care are urmatoarele valori medii: 0,08 pentru
lagare de alunecare; 0,015 pentru lagare cu rulmenti cu bile sau
role; 0,02 pentru lagare cu rulmenti cu role conice; Am ales valoarea
diametrul mediu al cailor de rulare din
lagarele rotilor podului rulant.
Forta
de
rezistenta determinata de mersul oblic al podului rulant
apare din numeroase cauze dintre care enumeram: actiunea
excentrica a fortelor orizontale, rezistente la rulare diferite
determinate de repartitia neuniforma a incarcarilor pe
roti, abateri de executie sau montaj, etc. In calculele de proiectare
se tine seama de rezistenta suplimentara determinata de
mersul oblic printr-un coeficient cg, supraunitar care
amplifica relatia de calcul a fortei Fr de
rezistenta la rulare. Valorea lui este
. Acest coeficient ia in considerare si
rezistentele introduse de sistemul de alimentare cu energie
electrica.
Forta
de
rezistenta determinata de actiunea vantului se poate
determina cu relatia:
in care:
numarul de elemente ale podului rulant
expuse la actiunea vantului;
aria suprafetei frontale ale elementelor
podului rulant expuse la actiunea vantului;
presiunea dinamica de baza data
de vant a carei valoare de calcul se poate aprecia la 80 N/m2
in conformitate cu STAS 284
Conform figurei 9 elementele semnificative care pot intra in calculul suprafetei expuse la actiunea vantului sunt: cadrul podului rulant (pozitia
I), sistemul de propulsie a podului (pozitia III), instalatia
electrica a podului rulant (pozitia V). Aria suprafetei frontale ale elementelor podului rulant poate fi considerata ca fiind
Forta Fh [N] de rezistenta la deplasarea prin curentul de apa uzata a organelor de colectare/colectare - evacuare - Nu se ia in calcul.
Forta Fi [N] de rezistenta datorata inertiei la demaraj. Nu se ia in calcul
Forta Fpr [N] de rezistenta la inaintarea podului rulant este:
Puterea Ppr [W] necesara actionarii podului rulant, la arborele rotilor motoare ale acestuia, se determina cu relatia:
3 Determinarea parametrilor principali ai jgheaburilor drenante pentru deshidratarea nisipului
Jgheaburile drenante pentru deshidratarea nisipului sunt situate de regula alaturi de deznisipatoare, paralel cu acestea. Daca nu se impun din punct de vedere constructiv anumite restrictii legate de spatiu, cotele de pozitionare ale jgheaburilor pot fi apreciate pe baza indicatiilor din figura 13 (in care sunt indicate cotele de pozitionare atat pentru cazul evacuarii hidraulice a nisipului prin sifonare, caz care poate fi aplicabil si la deznisipatoarele longitudinale cu colectare mecanica a nisipului, cat si pentru cazul evacuarii hidraulice a nisipului prin pompare). In figura 14 este prezentata o sectiune transversala a unui jgheab pentru deshidratarea nisipului.

Fig. 14Jgheab drenant pentru .............................. deshidratarea nisipului
Fig. 1 Parametrii dimensionali ai bazinelor decantoarelor secundare longitudinale
Parametrii principali care stau la baza proiectarii unui jgheab drenant pentru deshidratarea nisipului sunt:
Volumul Vdep [m3/zi] de nisip depus in deznisipator intre doua evacuari succesive care se determina cu relatia:
in care: iev nis zi - numarul zilnic de evacuari ale nisipului sedimentat in deznisipator, uzual 4 - 8 evacuari/zi. Am ales iev nis zi =6.
Numarul icjdn de compartimente ale jgheabului de deshidratare a nisipului, realizate in lungul acestuia, se impune constructiv avand valori uzuale icjdn = 3.6. Am ales icjdn =
Lungimea Lcjdn [m] unui compartiment ale jgheabului de deshidratare a nisipului se determina cu relatia:
in care:
L [m] - lungimea deznisipatorului;
c [m] - grosimea peretilor dintre compartimente avand uzual valori intre 0,08 - 0,12 m. Aleg c=0.1 m.
Latimea
lcjdn [m] compartimentelor jgheabului
de deshidratare a nisipului se impune de asemenea din motive constructive.
Valoarea sa este
Suprafata Atjdn [m2] totala, orizontala a compartimentelor jgheabului de deshidratare a nisipului se determina cu relatia:
Inaltimea
[m] a
stratului de nisip depus in compartimentele jgheabului de deshidratare a
nisipului se determina cu relatia:
Inaltimea Hcdn [m] utila pentru depunerea nisipului din compartimentele jgheabului de deshidratare se determina cu relatia:
in care: csig - coeficient de siguranta
care are valori intre 1,5 - 2. Am ales
De-a lungul jgheabului de deshidratare a nisipului sunt prevazute ferestre de preaplin pentru evacuarea amestecului de nisip si apa in exces in cazul defectarii podului rulant cu pompa de evacuare a nisipului din deznisipator in functiune.
Ferestrele de preaplin au profil dreptunghiular cu latura inferioara in rol de deversor, cu muchia ascutita plasata la 0,65 m peste cota Hcdn [m] si cu latura superioara la 0,1 m de marginea superioara a jgheaburilor de deshidratare.
Inaltimea hpp [m] a profilului ferestrelor de preaplin se poate determina pa baza relatiei:
in care:
Qpe
[m3/s] - debitul pompei de evacuare a nisipului din deznisipator;
Adopt
m - coeficient de debit avand valoarea 0,42;
lpp
[m] - lungimea profilului ferestrelor de preaplin, cu valori uzuale de 0,6 - 1
m; Adopt
g [m/s2] - acceleratia gravitationala cu valoarea de 9,81 m/s2.
Din motive constructive inaltimea ferestrelor de preaplin se adopta de minimum 0,1 m.
Ferestrele de preaplin sunt prevazute pe toata lungimea jgheabului de deshidratare a nisipului cu interspatii de 0,3 - 0,5 m.
Inaltimea
a jgheabului de deshidratare :
Distanta dintre compartimentele jgheabului si peretii desnisipatorului
Cap 4. Proiectarea preliminara a sistemului de actionare conform transmisiei
Alegerea motorului electric
Determinarea turatiei rotilor motoare
Pentru determinarea turatiei rotilor motoare avem nevoie de viteza podului rulant
pentru a determina
viteza rotii motoare
( vezi figura ).
Vp=0.03 m/s
0.015 m/s
in care:
viteza rotilor motoare sau viteza podului,
viteza unghiulara a rotii motoare,
raza rotilor motoare,
Estimarea puterii necesare motorului electric
se face cu relatia:
unde:
coeficient ce tine seama de necesarul
de putere, necesar la pornire sau la suprasarcini accidentale, care poate lua
valori intre 1,3 - 2; Inpun
puterea necesara pentru
actionarea organelor de lucru.
randamentul total al transmisiei sistemului de actionare. Inpun
Alegerea preliminara a motorului electric
La echipamentele si instalatiile din statiile de epurare a apelor uzate, cea mai avantajoasa sursa de actionare o constituie motoarele electrice, din urmatoarele considerente: statiile de epurare sunt racordate la reteaua nationala de electricitate sau au grupuri electrogene proprii; modul de transport al energiei de alimentare a motoarelor este convenabil; actionarea electrica favorizeaza utilizarea unor sisteme de control sau automatizare care asigurara o functionare corespunzatoare / optima a echipamentelor si instalatiilor, cu consum minim de forta de munca umana.
Dintre motoarele electrice, cele mai des utilizate sunt motoarele asincrone trifazate. Din tabelul 5.4 [1] aleg motorul ASA 63-8, cu urmatoarele caracteristici :
Stabilirea raportului total de transmitere
Stabilirea structurii transmisiei
Transmisiile utilizate la actionarea podului rulant are in componenta sa urmatoarele:
Angrenaje (reductor);
Transmisie prin curea (de la motor la reductor );
Transmisie prin lant (de la reductor la rotile motoare ).
Cunoastem:
Raportul de transmisie prin curea
si
randamentul
(ales din tabelul 5.10 si tabelul 5.11 [1] );
Raportul de transmisie prin lant
si randamentul
ales din tabelul 5.10 si tabelul 5.11 [1] );
Calculam raportul de transmisie a reductorului :
Reductorul il aleg cu doua trepte:
Daca
raportul de transmisie a unei trepte.
Inpun randamentul
Din calculele de mai sus rezulta ca motorul ales este corespunzator.
Bibliografie
V.V. Safta, Magdalena-Laura Toma - Elemente de proiectare a echipamentelor si instalatiilor din treapta mecanica a statiilor de epurare a apelor uzate - Printech, 2003 (Medeea Company)
Pislarasu I., Rotaru N., Tigoianu V. - Canalizari, Editura Tehnica, Bucuresti, 1965
. *** Normativ pentru proiectarea constructiilor si instalatiilor de epurare a apelor uzate orasenesti - Partea I: Treapta mecanica - Anteproiect - Universitatea Tehnica de Constructii Bucuresti, Facultatea de Hidrotehnica, Bucuresti, Ianuarie 1998
Filipoiu I.D., Tudor A. - Transmisii mecanice. Indrumar pentru proiectare, Institutul Politehnic Bucuresti, Catedra de Organe de masini, Bucuresti, 1990
*** Motoare asincrone antiexpolzive si antideflagrante - Catalog de produse - Uzina de Motoare Electrice Bucuresti, 2003
Rojanschi V., Ognean Th. - Cartea operatorului din statiile de epurare a apelor uzate, Editura Tehnica, Bucuresti, 1997
www. wikipedia.org
www.asio.ro
ired=17.179 hred
vpr=0.03[m/s] itr=4.145 htr=0.98
ic=4
hc
nI=157.514 [rpm] nII=38.001[rpm]
PI=6.803 [W] PII=6.667 [W]
il=4 nIII=9.168 [rpm]
hl PIII=6.534 [W]
nrm=2.292 [rpm]
Pact=5.946 [W]
nME=630 [rpm]
PME= 0.04 [kW]
PME nec=0.0127 [kW]
PME reg=7.086 [W]
|
Politica de confidentialitate | Termeni si conditii de utilizare |
Vizualizari: 5925
Importanta: ![]()
Termeni si conditii de utilizare | Contact
© SCRIGROUP 2025 . All rights reserved